Dom ERDOL 2 XL ma powierzchnię 82 m² (130 m² w przypadku projektu z poddaszem użytkowym) i jest wydłużoną wersją domu ERDOL 2. Jest to doskonała propozycja dla wszystkich osób, które w swoim domu nie potrzebują dużej liczby pomieszczeń, jednak chcą skorzystać z dodatkowego metrażu, dzięki czemu zyskują więcej przestrzeni do wygodnego funkcjonowania. Zastosowane w tym projekcie nowoczesne technologie i ekologiczne rozwiązania sprawiają, że jest to dom energooszczędny, który funkcjonuje w harmonii z naturą. Do budowy wykorzystuje się drewno KVH stanowiące podstawę całej konstrukcji. Odpowiednio dobrane materiały izolacyjne sprawiają, że dom chroniony jest przed stratami ciepła.
Projekt ERDOL 2 XL w wybranej konfiguracji posiada dach dwuspadowy z poddaszem użytkowym o kącie nachylenia 35 stopni oraz wyposażony jest w stolarkę PVC firmy EUROCOLOR SYNEGO na profilu marki REHAU o szerokości 80mm w kolorze białym.
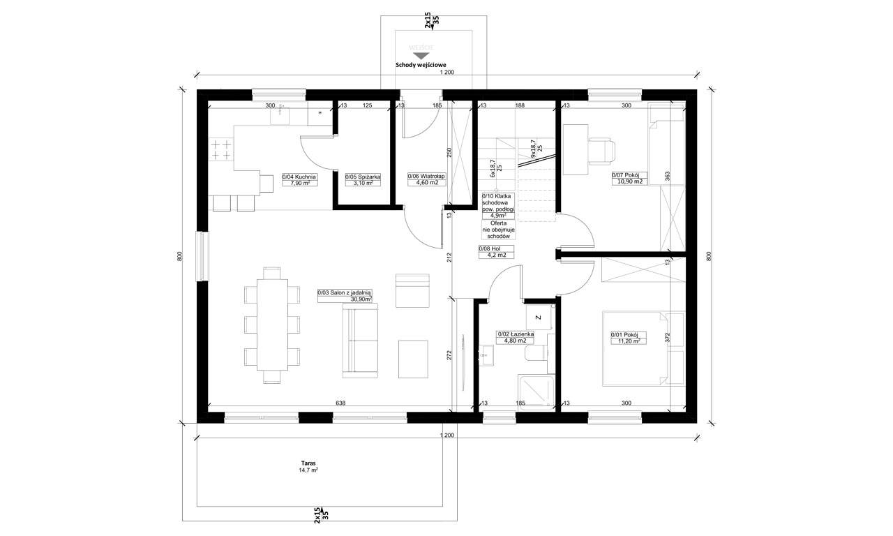
Projekt ERDOL 2 XL
(2 063 zł za m²)
- Projekt budowlany
- Prefabrykowane ściany zewnętrzne z przygotowanymi peszlami pod instalację elektryczną, ociepleniem styropianem, siatka i klej
- Prefabrykowane ściany wewnętrzne parteru z przygotowanymi peszlami pod instalację elektryczną
- Konstrukcja wiązarowa dachu – bez zamykania/wycieplenia stropu i dachu oraz bez materiału do tych prac
- Pokrycie dachowe – dachówka betonowa Brass, kolor antracyt
- Rynny Galeco - 2 rury spustowe
- Montaż elementów prefabrykowanych
- Stolarka okienna 3-szybowa wraz z montażem, kolorystyka zgodnie z wybraną opcją z konfiguratora
- Drzwi wejściowe wraz z montażem, kolorystyka zgodnie z wybraną opcją z konfiguratora
- Montaż pokrycia dachowego i orynnowania
- Transport i montaż w obrębie województwa śląskiego, opolskiego, małopolskiego i dolnośląskiego
- Adaptacja projektu do działki oraz charakterystyka energetyczna budynku
- Uzyskanie pozwolenia na budowę
- Zatrudnienie kierownika budowy i założenia dziennika budowy
- Przygotowanie płyty fundamentowej zgodnie z projektem oraz wytycznymi wykonawcy budynku
- Instalacja elektryczna
- Instalacja wodno-kanalizacyjna
- Instalacja wentylacyjna
- Wylewka
- Instalacja grzewcza
- Zamknięcie/wycieplenie stropu
- Zamknięcie/wycieplenie dachu
- Zagospodarowanie i aranżacja poddasza, tj. wykonanie wentylacji poddasza, wykonanie podłogi, ścian działowych, sufitów i skosów, rozprowadzenie instalacji elektrycznej oraz wodno-kanalizacyjnej
- Gipsowanie, szpachlowanie i szlifowanie ścian i sufitu
- Zakup oraz montaż schodów w przeznaczonym do tego miejscu
- Wykończenie – malowanie ścian, biały montaż
- Wykonanie finalnego tynku na elewacji
- Wykonanie przyłączy zewnętrznych
- Wykonanie uziemienia budynku (jeżeli jest wymagane)
- Wykonanie instalacji odgromowej (jeżeli jest wymagane)
Klientom, którzy zdecydują się na zakup ERDOL HAUS, oferujemy także pomoc w przygotowaniu płyty fundamentowej. Jest to bardzo ważna część budowy, ponieważ to właśnie na niej opierać się będzie cały budynek, dlatego należy zadbać o jej odpowiednie wykonanie. Płyta jest alternatywą dla tradycyjnych fundamentów, a jej głównymi zaletami są zdecydowanie krótszy czas realizacji oraz izolacja termiczna. Wybór tego rozwiązania przyspiesza też kolejne etapy budowy – wykorzystanie płyty fundamentowej pozwala skrócić czas budowy nawet o kilka tygodni.

Wszystkim Klientom budującym dom ERDOL HAUS na terenie całego kraju oferujemy usługę realizacji budynku w standardzie deweloperskim. W celu uzyskania szczegółowych informacji dotyczących tej kwestii, zapraszamy do kontaktu z naszym przedstawicielem.
- Dostarcz dokumenty niezbędne do zawarcia umowy na budowę, tj. Warunki Zabudowy (WZ) lub Miejscowy Plan Zagospodarowania Przestrzennego (MPZP).
- Podpisz umowę i zyskaj aż do 7 miesięcy gwarancji ceny budowy domu.
- Wpłać zadatek zgodnie z umową.
- Odbierz dokumentację projektową (wszystkie niezbędne projekty przekażemy Ci do 45 dni od zawarcia umowy i wpłaty zadatku).
- Wykonaj adaptację – wrysowanie projektu domu w działkę przez specjalistę posiadającego stosowne uprawnienia.
- Złóż wniosek o Pozwolenie na Budowę lub zgłoś budowę w przypadku „domu na zgłoszenie”.
- Prześlij kopię Pozwolenia na Budowę lub zgłoszenia budowy i zgłoś nam gotowość do rozpoczęcia prac.
- Potwierdź swoją gotowość finansową do rozpoczęcia budów.
* Harmonogram budowy zostanie ustalony po spełnieniu powyższych punktów.
- Płyta Fundamentowa – dokonaj płatności za jej wykonanie po zgłoszeniu gotowości.
* Wykonanie nastąpi minimum 3-4 tygodnie przed montażem budynku.
- Montaż budynku w stanie surowym zamkniętym. Dokonaj płatności i do 10 dni od zakończenia prac przy płycie fundamentowej.
* Montaż budynku zajmie nam około 3-7 dni.
- Instalacje wewnętrzne: elektryczna, wod. kan., ogrzewanie, wentylacja mechaniczna (rekuperacja).
- Stan deweloperski i sucha zabudowa.
* Szczegółowy harmonogram wykończenia domu pozostaje do indywidualnego ustalenia w zależności od ostatecznego zakresu prac.
- Przekazanie dokumentacji powykonawczej.
Abyś mógł dokładnie zapoznać się z projektem ERDOL HAUS, postanowiliśmy zobrazować jego wygląd i przygotowaliśmy dla Ciebie wirtualny spacer, dzięki któremu poznasz układ domu oraz rozmieszczenie poszczególnych pomieszczeń. Mamy nadzieję, że przykładowy projekt wystroju wnętrz stworzony przez naszych projektantów, będzie dla Ciebie pomocną inspiracją na etapie wykańczania budynku i pozwoli Ci wyobrazić sobie, jak pięknie może wyglądać życie w Twoim własnym domu.
