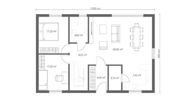
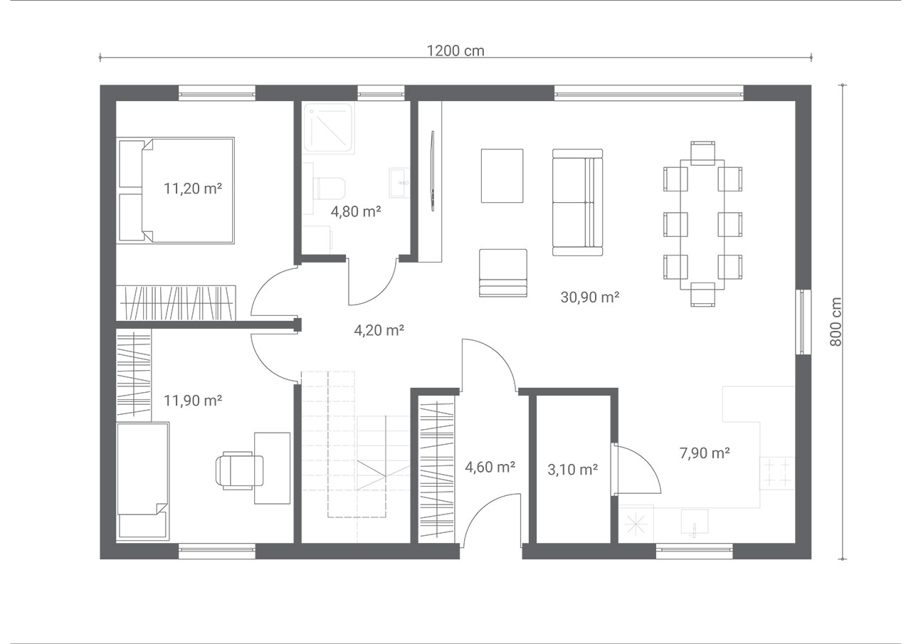
Dom ERDOL 2 XL PLUS ma powierzchnię po podłodze: 159 m² w rozkładzie: 82 m² na parterze oraz 77 m² na piętrze.
Jest to początek nowej linii domów ERDOL HAUS, która charakteryzuje się nowoczesną bryłą oraz wstępnym wykończeniem budynku już w stanie surowym zamkniętym.
Doskonała propozycja dla wszystkich osób, które w swoim domu potrzebują dużej liczby pomieszczeń i chcą skorzystać z dodatkowego metrażu, dzięki czemu zyskują więcej przestrzeni do wygodnego funkcjonowania. Zastosowane w tym projekcie nowoczesne technologie i ekologiczne rozwiązania sprawiają, że jest to dom energooszczędny, który funkcjonuje w harmonii z naturą. Do budowy wykorzystuje się drewno KVH stanowiące podstawę całej konstrukcji. Odpowiednio dobrane materiały izolacyjne sprawiają, że dom chroniony jest przed stratami ciepła.
Projekt ERDOL 2 XL PLUS posiada dach dwuspadowy nowoczesny z użytkowym poddaszem użytkowym o kącie nachylenia 40 stopni oraz wyposażony jest w stolarkę PVC firmy EUROCOLOR SYNEGO na profilu marki REHAU o szerokości 80mm w kolorze antracytowym. Montowane drzwi zewnętrzne to drzwi firmy WIKĘD model 26h, ościeżnica Optimum Termo z szybą reflex.
Projekt ERDOL 2 XL PLUS
- Prefabrykowane ściany zewnętrzne parteru i poddasza zgodnie ze specyfikacją technologii (bez tynku dekoracyjnego) z peszlami do montażu instalacji elektrycznej
- Prefabrykowane ściany wewnętrzne parteru i poddasza zgodnie ze specyfikacją technologii z peszlami do montażu instalacji elektrycznej
- Prefabrykowany strop drewniany zgodnie ze specyfikacją technologii, wypełniony wełną, zamknięty od góry płytą OSB 18mm ze stelażem drewnianym od dołu przygotowanym do montażu płyt GK
- Prefabrykowana drewniana konstrukcja dachowa zgodnie ze specyfikacją technologii, wypełniona pierwszą warstwą wełny
- Prefabrykowane zadaszenie nad wejściem w kształcie "L"
(Pakiety dodatkowe poza tynkami zewnętrznymi są dostępne wyłącznie przy wyborze rekuperacji)
(2 186 zł za m²)
- Projekt budowlany
- Prefabrykowane ściany zewnętrzne parteru i poddasza zgodnie ze specyfikacją technologii (bez tynku dekoracyjnego) z peszlami do montażu instalacji elektrycznej
- Prefabrykowane ściany wewnętrzne parteru i poddasza zgodnie ze specyfikacją technologii z peszlami do montażu instalacji elektrycznej
- Prefabrykowany strop drewniany zgodnie ze specyfikacją technologii, wypełniony wełną, zamknięty od góry płytą OSB ze stelażem drewnianym od dołu przygotowanym do montażu płyt GK
- Prefabrykowana drewniana konstrukcja dachowa zgodnie ze specyfikacją technologii, wypełniona pierwszą warstwą wełny
- Prefabrykowane zadaszenie nad wejściem w kształcie "L"
- Dachówka betonowa BRAAS celtycka lumino w kolorze Grafit, obróbki blacharskie w kolorze Antracyt, rynny stalowe kwadratowe Galeco
- Stolarka okienna 3-szybowa wraz z montażem, kolorystyka zgodnie z wybraną opcją z konfiguratora
- Drzwi wejściowe wraz z montażem, kolorystyka zgodnie z wybraną opcją z konfiguratora
- Montaż elementów budynku
- Montaż pokrycia dachowego i orynnowania
- Transport i montaż w obrębie województwa śląskiego, opolskiego, małopolskiego i dolnośląskiego
- Adaptacja projektu do działki i uzyskanie pozwolenia na budowę — możliwość wykonania przez ERDOL HAUS na indywidualne zapytanie
- Zatrudnienie kierownika budowy i założenie dziennika budowy
- Przygotowanie płyty fundamentowej zgodnie z projektem oraz wytycznymi wykonawcy budynku – możliwość wykonania przez ERDOL HAUS na indywidualne zapytanie
- Instalacja wentylacyjna
- Instalacja elektryczna
- Instalacja wodno-kanalizacyjna
- Wylewka na parterze oraz poddaszu
- Instalacja grzewcza
- Montaż płyt kartonowo gipsowych na suficie parteru
- Montaż płyt kartonowo gipsowych na stelażu stalowym z druga warstwą wełny i folią paroizolacyjną na połaciach dachu na poddaszu
- Szpachlowanie, gipsowanie i szlifowanie ścian i sufitu
- Wykonanie tynku zewnętrznego dekoracyjnego na elewacji
- Obróbka cokołu płyty fundamentowej
- Wykończenie – malowanie ścian, biały montaż
- Wykonanie przyłączy zewnętrznych
Klientom, którzy zdecydują się na zakup ERDOL HAUS, oferujemy także pomoc w przygotowaniu płyty fundamentowej. Jest to bardzo ważna część budowy, ponieważ to właśnie na niej opierać się będzie cały budynek, dlatego należy zadbać o jej odpowiednie wykonanie. Płyta jest alternatywą dla tradycyjnych fundamentów, a jej głównymi zaletami są zdecydowanie krótszy czas realizacji oraz izolacja termiczna. Wybór tego rozwiązania przyspiesza też kolejne etapy budowy – wykorzystanie płyty fundamentowej pozwala skrócić czas budowy nawet o kilka tygodni.

Wszystkim Klientom budującym dom ERDOL HAUS na terenie całego kraju oferujemy usługę realizacji budynku w standardzie deweloperskim. W celu uzyskania szczegółowych informacji dotyczących tej kwestii, zapraszamy do kontaktu z naszym przedstawicielem.
- Dostarcz dokumenty niezbędne do zawarcia umowy na budowę, tj. Warunki Zabudowy (WZ) lub Miejscowy Plan Zagospodarowania Przestrzennego (MPZP).
- Podpisz umowę i zyskaj aż do 7 miesięcy gwarancji ceny budowy domu.
- Wpłać zadatek zgodnie z umową.
- Odbierz dokumentację projektową (wszystkie niezbędne projekty przekażemy Ci do 45 dni od zawarcia umowy i wpłaty zadatku).
- Wykonaj adaptację – wrysowanie projektu domu w działkę przez specjalistę posiadającego stosowne uprawnienia.
- Złóż wniosek o Pozwolenie na Budowę lub zgłoś budowę w przypadku „domu na zgłoszenie”.
- Prześlij kopię Pozwolenia na Budowę lub zgłoszenia budowy i zgłoś nam gotowość do rozpoczęcia prac.
- Potwierdź swoją gotowość finansową do rozpoczęcia budów.
* Harmonogram budowy zostanie ustalony po spełnieniu powyższych punktów.
- Płyta Fundamentowa – dokonaj płatności za jej wykonanie po zgłoszeniu gotowości.
* Wykonanie nastąpi minimum 3-4 tygodnie przed montażem budynku.
- Montaż budynku w stanie surowym zamkniętym. Dokonaj płatności i do 10 dni od zakończenia prac przy płycie fundamentowej.
* Montaż budynku zajmie nam około 3-7 dni.
- Instalacje wewnętrzne: elektryczna, wod. kan., ogrzewanie, wentylacja mechaniczna (rekuperacja).
- Stan deweloperski i sucha zabudowa.
* Szczegółowy harmonogram wykończenia domu pozostaje do indywidualnego ustalenia w zależności od ostatecznego zakresu prac.
- Przekazanie dokumentacji powykonawczej.
Abyś mógł dokładnie zapoznać się z projektem ERDOL HAUS, postanowiliśmy zobrazować jego wygląd i przygotowaliśmy dla Ciebie wirtualny spacer, dzięki któremu poznasz układ domu oraz rozmieszczenie poszczególnych pomieszczeń. Mamy nadzieję, że przykładowy projekt wystroju wnętrz stworzony przez naszych projektantów, będzie dla Ciebie pomocną inspiracją na etapie wykańczania budynku i pozwoli Ci wyobrazić sobie, jak pięknie może wyglądać życie w Twoim własnym domu.
