Projekt ERDOL Mini

dom bez pozwolenia do 35m2

Z myślą o osobach, które pragną własnego domu, jednocześnie kierując się w życiu ideą minimalizmu, stworzyliśmy funkcjonalny projekt domu modułowego o niewielkich rozmiarach, w którym mieści się wszystko to, co jest potrzebne do wygodnego życia. Co ważne, jest on wykonany z ekologicznych materiałów o wysokiej jakości, a jego budowa i utrzymanie generują niewielkie koszty. Przedstawiamy ERDOL Mini!

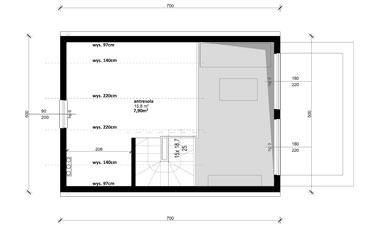
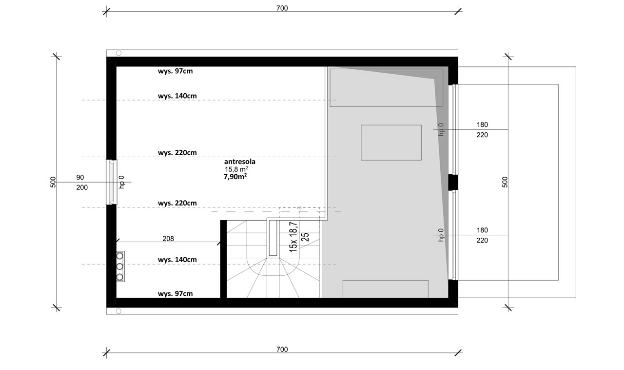
Powierzchnia zabudowy domu wynosi 35 m², co sprawia, że do jego budowy nie potrzeba pozwolenia – wystarczy zgłoszenie. Mimo niedużych rozmiarów miejsca wewnątrz budynku jest sporo, dzięki antresoli, która stanowi dodatkową przestrzeń użytkową. Projekt ten nadaje się także świetnie na domek letniskowy, który dzięki wykorzystaniu odpowiednich materiałów i technologii, będzie zapewniał komfortowe warunki przez cały rok.

Erdol Mini to uniwersalny projekt domu, który może mieć każdy, kto o tym zamarzy! Dzięki niewielkim rozmiarom, do jego budowy nie potrzeba pozwolenia. Wystarczy, że masz odpowiednie miejsce i płytę fundamentową – tylko tyle potrzebujesz, aby wznieść Twój własny dom szkieletowy. Montaż konstrukcji możesz przeprowadzić sam lub z naszą pomocą. Wszystko zależy od tego, którą z poniższych opcji wybierzesz.

Wybierając projekt ERDOL Mini w wariancie elementy konstrukcji, otrzymasz od nas odpowiednio przygotowane i oznakowane elementy, które wystarczy poskładać na placu budowy. Mogą to być pojedyncze części wycięte na pile wraz z instrukcją montażu oraz kompletem łączników lub szkielet konstrukcji w postaci skręconych ścian budynku.

Możesz także zdecydować się na zakup gotowej konstrukcji. W tym przypadku to my zajmiemy się montażem Twojego domu. Ta opcja daje możliwość zamówienia również takich elementów budynku jak okna, dach, rynny czy elewacja.

Konfigurator

Czy wiesz, że sam możesz przeprowadzić montaż swojego wymarzonego domu? Wybierając projekt ERDOL 35m2 w wariancie „elementy konstrukcji”, otrzymasz od nas odpowiednio przygotowane i oznakowane części. W zależności od wybranej opcji będą to elementy konstrukcji w paczkach do samodzielnego montażu lub gotowe ramy konstrukcji w postaci gotowych ścian, które należy ze sobą połączyć. Transportem zajmiemy się my – materiały do budowy przywieziemy pod wskazany adres i rozładujemy na płycie fundamentowej lub tuż obok.

Projekt ERDOL 35m2 w tej wersji posiada tylko niewielkie możliwości konfiguracji. Jeśli chcesz zamówić elementy budynku takie jak okna, dach, rynny czy elewacja wybierz opcję „ERDOL 35m2 – gotowa konstrukcja”.

W sumie
36 000 zł brutto
Jesteś zainteresowany naszą ofertą?
Potrzebujesz pomocy lub porady?
Zadzwoń do naszego konsultanta tel. +48 732 717 200
Co zawiera wybrana konfiguracja
Co robi Erdol Haus
  • Elementy konstrukcji ścian zewnętrznych
  • Elementy konstrukcji ścian wewnętrznych
  • Elementy konstrukcji krokwiowo jętkowej dachu
  • Zestaw łączników konstrukcji ETC.
  • Transport - na terenie całej Polski
  • Rozładunek elementów na działce
Co robisz Ty
  • Zgłoszenie budowy w urzędzie
  • Przygotowanie płyty fundamentowej zgodnie z projektem
  • Montaż konstrukcji ścian oraz konstrukcji dachu
  • Zamknięcie/wycieplenie ścian wewnętrznych i zewnętrznych (wełna + montaż płyt Fermacell)
  • Montaż poszycia zewnętrznego/ocieplenia – np. płyty STEICO PROTECT
  • Pokrycie wraz z montażem – dachówka betonowa/blacha/słoma
  • Orynnowanie wraz z montażem
  • Stolarka okienna wraz z montażem – producent według uznania
  • Drzwi wejściowe wraz z montażem – producent według uznania
  • Instalacja elektryczna
  • Instalacja wodno-kanalizacyjna
  • Wylewka
  • Instalacja grzewcza
  • Zamknięcie/wycieplenie stropu/antresoli
  • Zamknięcie/wycieplenie dachu od środka
  • Szpachlowanie i szlifowanie ścian i sufitu
  • Wykończenie – malowanie ścian, biały montaż
  • Wykonanie warstwy kleju z siatką oraz finalnego tynku, ewentualnie wykonanie elewacji drewnianej
  • Parapety wraz z montażem
Poznaj wnętrza domów szkieletowych

Nawet niewielkich rozmiarów dom może robić ogromne wrażenie! Tak właśnie dzieje się w przypadku domów ERDOL Mini. Mimo małej powierzchni oferują one wiele możliwości, między innymi dzięki antresoli, która tworzy dodatkową przestrzeń użytkową i czyni projekt funkcjonalnym. We wnętrzu znajdzie się także miejsce na każde pomieszczenie, które jest potrzebne w codziennym życiu. Dodatkowo przy odpowiednim wykończeniu wnętrz, możemy zyskać imponujący efekt, jak ten widoczny na poniższych przykładowych wizualizacjach, które możecie wykorzystać jako inspirację do urządzenia Waszego własnego domu.

Wczytywanie...
Zapisz się do naszego newsletter
Dowiaduj się jako pierwszy o promocjach, nowościach oraz wydarzeniach związanych z ERDOL HAUS.